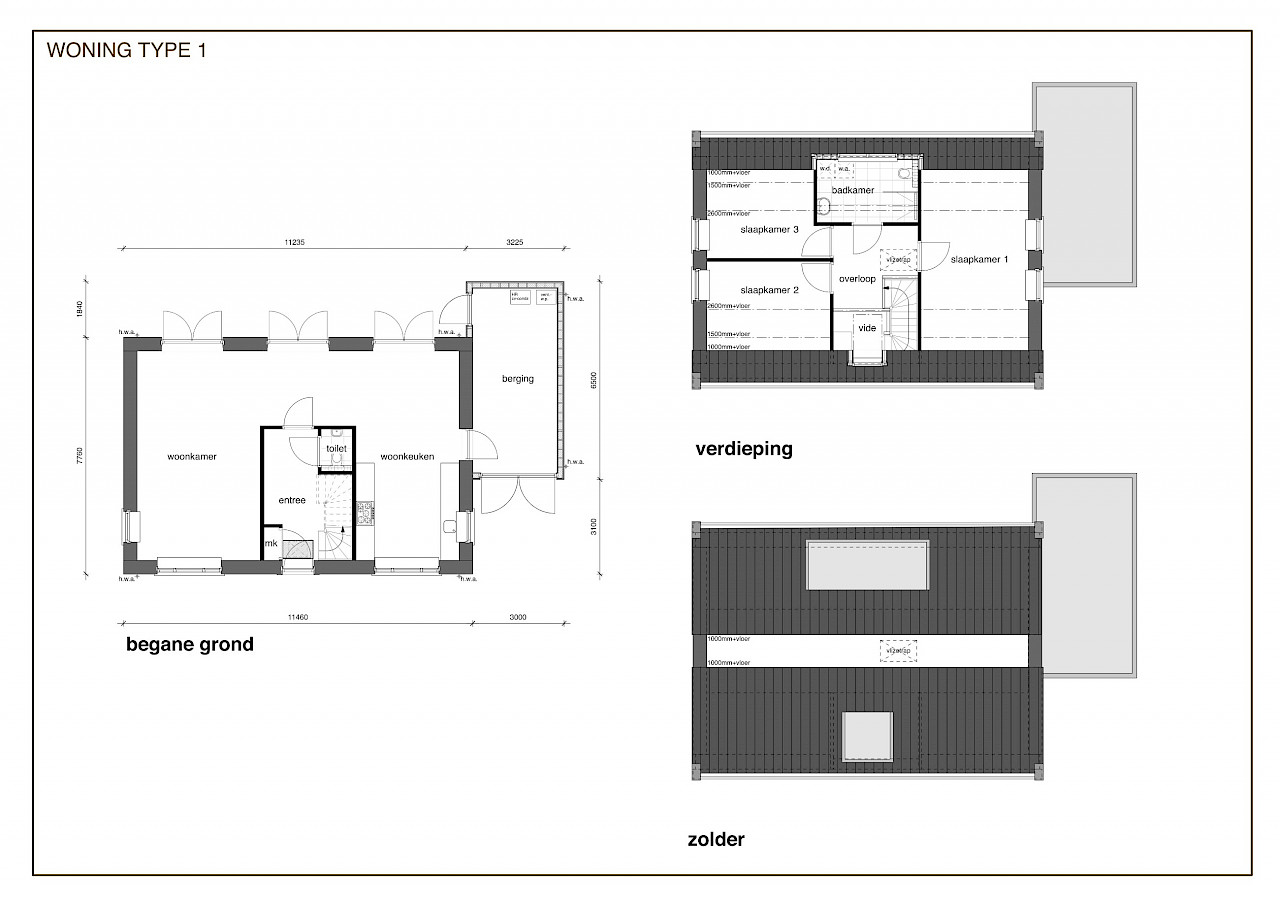
Type 01: Vrijstaand klassiek

De kracht van mooie belijningen en symmetrie. Bij deze woning ligt het accent duidelijk op de hoofdentree met de sierlijke omlijsting, mooi gemarkeerd door de dakkapel erboven.

Een romantische knipoog naar vroeger.

Ga naar woningconfigurator

Specificaties

  • Woningtype 1
  • Brutoinhoud 549m3
  • Brutovloer opp. 224m2
  • Bebouwd opp. 89m2
  • Casco gebouwd prijs vanaf € 261.218 incl. BTW
  • Casco gebouwd prijs per m3 vanaf € 476 incl. BTW
  • Totaal afgebouwd prijs vanaf € 402.590 incl. BTW
  • Totaal afgebouwd prijs per m3 vanaf € 733 incl. BTW
  • In verband met sterk fluctuerende  grondstofprijzen, zijn de genoemde bedragen indicatief. De dealer maakt graag een passende offerte.