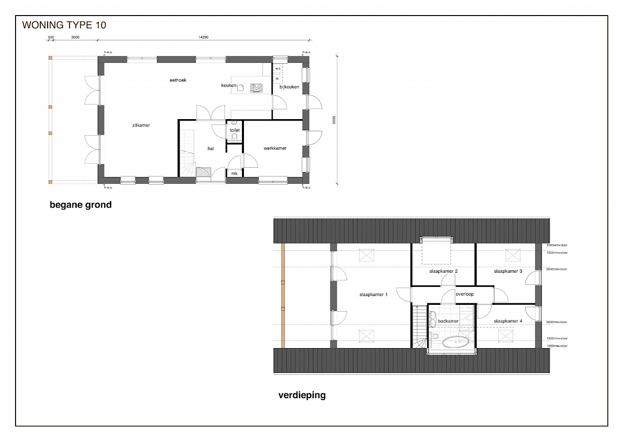
Type 10: schuurwoning

Een authentieke schuurwoning met een geheel eigentijdse uitstraling. Dit is landelijk wonen in optima forma. Een dominante kap en typisch kleur- en materiaalgebruik dat mooi past bij een landelijk gebied. Eenvoud en sobere belijning, en daarmee helemaal van nu.

Ga naar woningconfigurator

Specificaties

  • Woningtype 10
  • Brutoinhoud 775m3
  • Brutovloer opp. 313m2
  • Bebouwd opp. 123m2
  • Casco gebouwd prijs vanaf € 350.852 incl. BTW
  • Casco gebouwd prijs per m3 vanaf € 453 incl. BTW
  • Totaal afgebouwd prijs vanaf € 531.111 incl. BTW
  • Totaal afgebouwd prijs per m3 vanaf € 685 incl. BTW
  • In verband met sterk fluctuerende  grondstofprijzen, zijn de genoemde bedragen indicatief. De dealer maakt graag een passende offerte.