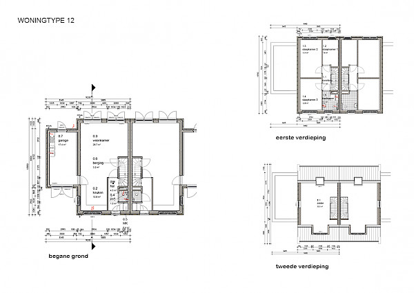
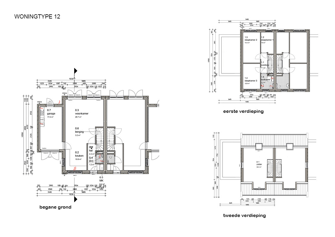
Type 12: tussenwoning

Deze trendy tussenwoning vormt de logische schakel tussen de woontypes 11. Aantrekkelijk geprijsd, energiezuinig en duurzaam. De strakke belijning en fraaie afwerking zorgen voor een moderne en warme look.

De ideale starterswoning.

Ga naar woningconfigurator

Specificaties

  • Woningtype 12
  • Brutoinhoud 492m3
  • Brutovloer opp. 180m2
  • Bebouwd opp. 60m2
  • Casco gebouwd prijs vanaf € 175.979 incl. BTW
  • Casco gebouwd prijs per m3 van € 358 incl. BTW
  • Totaal afgebouwd prijs vanaf € 308.734 incl. BTW
  • Totaal afgebouwd prijs per m3 vanaf € 628 incl. BTW
  • In verband met sterk fluctuerende  grondstofprijzen, zijn de genoemde bedragen indicatief. De dealer maakt graag een passende offerte.