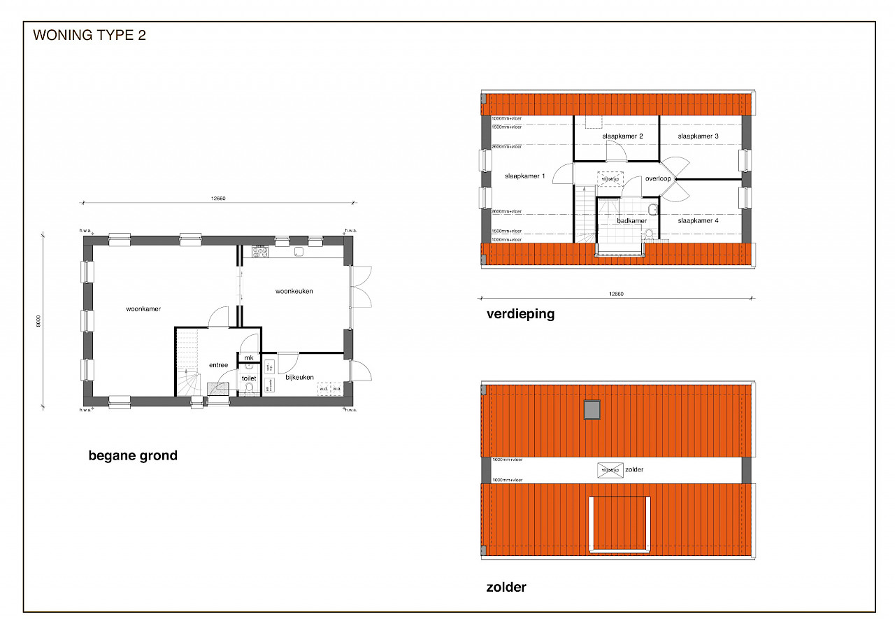
Type 02: Boerderijwoning

Landelijk met een vleugje nostalgie. Deze boerderijwoning met zwart gepotdekselde planken en bakstenen doet klassiek aan. Van oudsher bestaat dit type woning uit een huisdeel en een schuurdeel, waarbij in elk gedeelte een andere roedeverdeling voor de ramen is gebruikt om dit onderscheid nog eens te benadrukken. De tuitgevel met witte windveren maken het plaatje af.

Ga naar woningconfigurator

Specificaties

  • Woningtype 2
  • Bruto inhoud  625 m3
  • Bruto vloeropp. 254 m2
  • Bebouwd opp 101 m2
  • Casco gebouwd prijs vanaf € 269.207 incl. BTW
  • Casco gebouwd prijs per m€ 431 incl. BTW
  • Totaal afgebouwd prijs vanaf € 423.132 incl. BTW
  • Totaal afgebouwd prijs per m€ 677 incl. BTW
  • In verband met sterk fluctuerende  grondstofprijzen, zijn de genoemde bedragen indicatief. De dealer maakt graag een passende offerte.