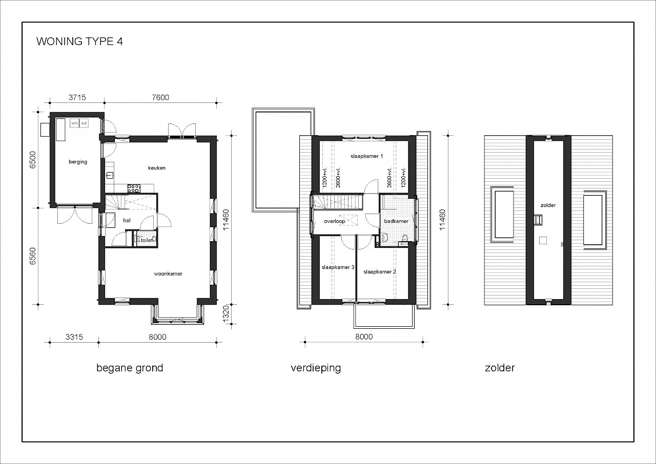
Type 04: Jaren 30

Jaren dertig architectuur in optima forma. De steile kap en grote gootoversteek zijn kenmerkend voor deze bouwstijl. In de kozijnen tref je een horizontale belijning aan, wat deze woning de typische uitstraling van deze bouwperiode geeft.

Ga naar woningconfigurator

Specificaties

  • Woningtype 4
  • Brutoinhoud 587m3
  • Brutovloer opp. 238m2
  • Bebouwd opp. 92m2
  • Casco gebouwd prijs vanaf € 282.236 incl. BTW
  • Casco gebouwd prijs per m3 vanaf € 481 incl. BTW
  • Totaal afgebouwd prijs vanaf € 427.453 incl. BTW
  • Totaal afgebouwd prijs per m3 vanaf € 728 incl. BTW 
  • In verband met sterk fluctuerende   grondstofprijzen, zijn de genoemde bedragen indicatief. De dealer maakt graag een passende offerte.