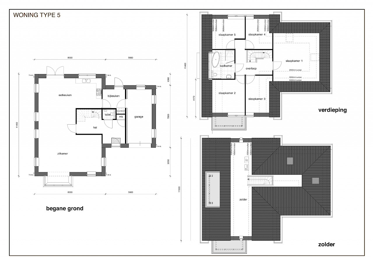
Type 05: jaren dertig royaal

Dit is duidelijk de grote broer van de jaren dertig ‘light’ variant. Dezelfde belijning in de kozijnen, dezelfde brede gootoversteek en dezelfde steile kap. Of toch niet? De uitbouw met eenzelfde kap geeft dit woningtype weer een geheel eigen gezicht.

Ga naar woningconfigurator

Specificaties

  • Woningtype 5
  • Brutoinhoud 826m3
  • Brutovloer opp. 339m2
  • Bebouwd opp. 131m2
  • Casco gebouwd prijs vanaf € 369.291 incl. BTW
  • Casco gebouwd prijs per m3 vanaf € 447 incl. BTW
  • Totaal afgebouwd prijs vanaf € 550.312 incl. BTW
  • Totaal afgebouwd prijs per m3 vanaf € 666 incl. BTW
  • In verband met sterk fluctuerende   grondstofprijzen, zijn de genoemde bedragen indicatief. De dealer maakt graag een passende offerte.