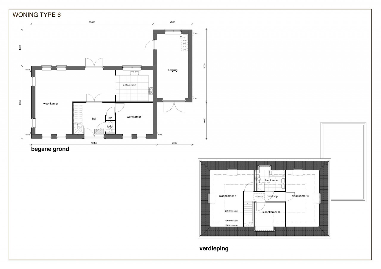
Type 06: landelijk klassiek

Veel aandacht voor detail. De entree met dubbele deur is het stralende middelpunt in dit symmetrische bouwwerk. De klassieke uitstraling geeft deze woning allure.

Ga naar woningconfigurator

Specificaties

  • Woningtype 6
  • Brutoinhoud 614m3
  • Brutovloer opp. 260m2
  • Bebouwd opp. 111m2
  • Casco gebouwd prijs vanaf € 280.885 incl. BTW
  • Casco gebouwd prijs per m3 vanaf € 457 incl. BTW
  • Totaal afgebouwd prijs vanaf € 443.102 incl. BTW
  • Totaal afgebouwd prijs per m3 vanaf € 722 incl. BTW
  • In verband met sterk fluctuerende   grondstofprijzen, zijn de genoemde bedragen indicatief. De dealer maakt graag een passende offerte.