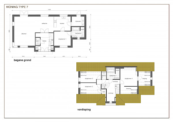
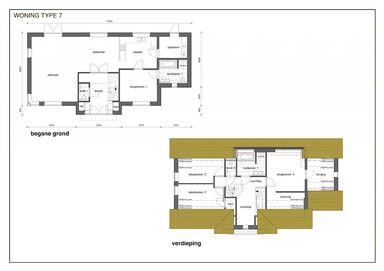
Type 07: landhuis

Een boerderij met dat typische oer-Hollandse gevoel. Dat zit voornamelijk in het materiaalgebruik. De zwarte gepotdekselde houten planken en de rieten kap zijn kenmerkend voor deze sfeer. Elementen uit andere periodes geven deze boerderij een eigentijdse uitstraling.

Ga naar woningconfigurator

Specificaties

  • Woningtype 7
  • Brutoinhoud 863m3
  • Brutovloer opp. 380m2
  • Bebouwd opp. 142m2
  • Casco gebouwd prijs vanaf € 389.201 incl. BTW
  • Casco gebouwd prijs per m3 vanaf € 451 incl. BTW
  • Totaal afgebouwd prijs vanaf € 608.423 incl. BTW
  • Totaal afgebouwd prijs per m3 vanaf € 705 incl. BTW
  • In verband met sterk fluctuerende  grondstofprijzen, zijn de genoemde bedragen indicatief. De dealer maakt graag een passende offerte.