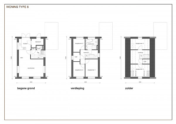
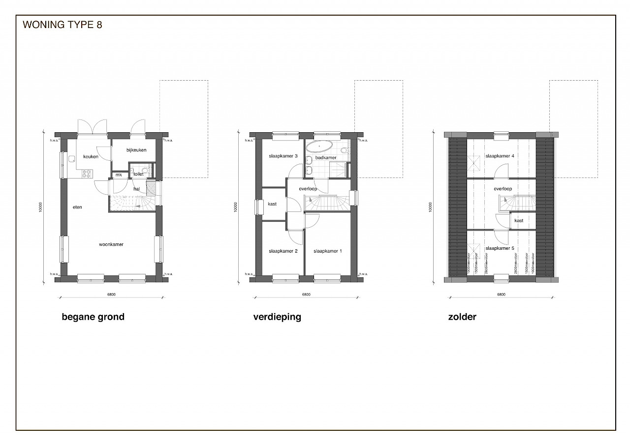
Type 08: herenhuis

Deze bouwstijl is indrukwekkend en imposant. Eigentijdse eenvoud in belijning met een bijzondere twist. De verticale roedeverdeling in de raampartijen geeft deze woning een eigen gezicht. De tuitgevel en de extra brede kopgevel zorgen voor extra allure.

Ga naar woningconfigurator

Specificaties

  • Woningtype 8
  • Brutoinhoud 581m3
  • Brutovloer opp. 204m2
  • Bebouwd opp. 68m2
  • Casco gebouwd prijs vanaf € 278.203 incl. BTW
  • Casco gebouwd prijs per m3 vanaf € 479 incl. BTW
  • Totaal afgebouwd prijs vanaf € 454.932 incl. BTW
  • Totaal afgebouwd prijs per m3 vanaf € 783 incl. BTW
  • In verband met sterk fluctuerende  grondstofprijzen, zijn de genoemde bedragen indicatief. De dealer maakt graag een passende offerte.