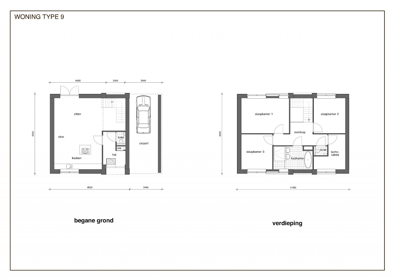
Type 09: Modern

Strakke, heldere lijnen en mooi materiaalgebruik. Hier draait alles om de juiste detaillering. Zwarte baksteen wordt afgewisseld met mooie glaspartijen die zorgen voor transparantie. Deze worden omlijnd met zwarte kozijnen die mooi afsteken tegen het strakke stuukwerk. De houten betimmeringen verbinden de vlakken met elkaar en zorgen voor een warm accent.

Ga naar woningconfigurator

Specificaties

  • Woningtype 9
  • Brutoinhoud 549m3
  • Brutovloer opp. 174m2
  • Bebouwd opp. 72m2
  • Casco gebouwd prijs vanaf €  323.676 incl. BTW
  • Casco gebouwd prijs per m3 vanaf € 590 incl. BTW
  • Totaal afgebouwd prijs vanaf € 492.028 incl. BTW
  • Totaal afgebouwd prijs per m3 vanaf € 896 incl. BTW
  • In verband met sterk fluctuerende  grondstofprijzen, zijn de genoemde bedragen indicatief. De dealer maakt graag een passende offerte.